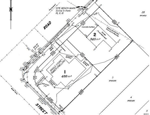
Two Lot Split

A rare opportunity to create a vacant lot where we get to keep the existing house and not need to move it. The proposed vacant lot is under the required minimum size, resulting in an Impact Assessable application, however, this is the result of a historical road widening and there is plenty of precedence in the street. 

Source: www.realestate.com.au