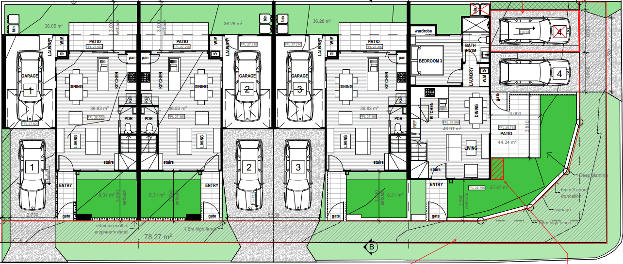
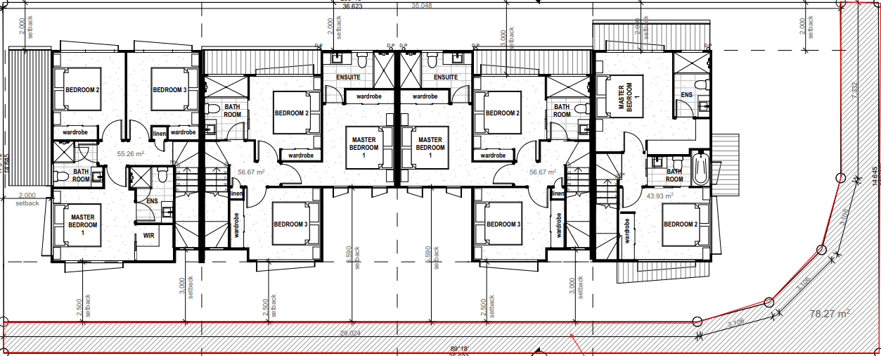
Four Terrace Style Townhouses

This site was originally purchased for a client as a high income earning future development site, before connecting that client with another client interested in developing the site in a win-win for both clients. A total of four freehold townhouses on just 536m2 of land (less a widening!) was achieved.